 |
Çok sayida LTF 413/414 yan yana kullanildigi gibi tek basina da kullanilabilir. Isikli bilgilendirme, aydinlatma, seslendirme gibi opsiyonlara hazir bulunan LTF 413/414 serisi 3 kollu ve 4 kollu olarak sizlere sunulmustur.
Stadyum, eglence merkezleri gibi yerlerin disinda güvenligin saglanmasi gereken plaza veya is merkezleri girislerinde de kullanilmaktadir.
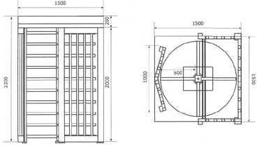
LTF 413 ve LTF 414 boy turnikeleri 3 kollu ve 4 kollu seçenekleri ile geçisin rahatligi ve güvenligi arasinda seçim yapma olanagini sunmaktadir. Hem içeride hem de disarida kullanilabilen LTF serisi, paslanmaz çelik (AISI 304) veya genis renk yelpazemizden size uygun bir renk ile E.M. firin boyali olarak üretilir. |
Tamami ile kapali üst bölümü sayesinde yönlendirme isiklari, iç yol geçis isiklandirmasi, siren, seslendirme sistemi ve yagmur suyu oluklari gibi opsiyonlara uygundur. Kaymaz lastik kapli tabanlari ile islevligine konfor katilmistir.
Boy turnikelerinin mekanik motorlarinin esnek yapilari sayesinde, basit giris-çikis islemlerinde veya elektronik kontrol cihazlari kullanilarak daha karmasik giris-çikis islemlerinde de kullanilabilir. Kullanim seçenekleri ile her turnike bir ya da iki yönlü kullanilabilir, istenildiginde tek yöne veya iki yöne birden giris izni verilir. Elektrik kelimelerinde veya tehlike anlarinda, turnike iki yöne serbest birakilabilir veya kilitlenebilir (lock-release). Turnikeler access kontrol panelleri veya uzaktan kontrol cihazlari ile kontrol edilebilir.
OPSIYONEL
Yönlendirme Isiklari, Sayici, Zaman Rölesi, Uzaktan Kontrol, Kartli Geçis Sistemine Entegrasyon, Özel Üretim.
ÖZELLIKLER
-
Turnikeler tek ya da çift yönlü geçise uygun olarak üretilmistir.
-
Elektrik kesilmelerinde giris-çikislar serbest birakilir veya kilitlenir (lock-release).
-
Bütün turnikeler iç veya dis mekanlara uygun, 3 veya 4 kollu dizayn edilmistir.
-
Turnikenin hareketi, hareketin dönüs yönü ve durusu dahili algilayicilar tarafindan belirlenir.
-
Besleme gerilimi araligi 220-110 VAC / 24-12 VDC. Turnikenin dahili gerilimi güvenlik nedeni ile 24 volttur.
-
Talep üzerine paslanmaz çelik veya genis renk yelpazemizden elektrostatik boyali olarak üretilmektedir.
|